Le Quartier
Qualité & Construction
Choix des Lots
Bâtiment A
Bâtiment B
Bâtiment C
Lots T2
Lots T3
Lots T4-T5
Maisons
Contact
Appelez-nous!
06 64 04 03 72
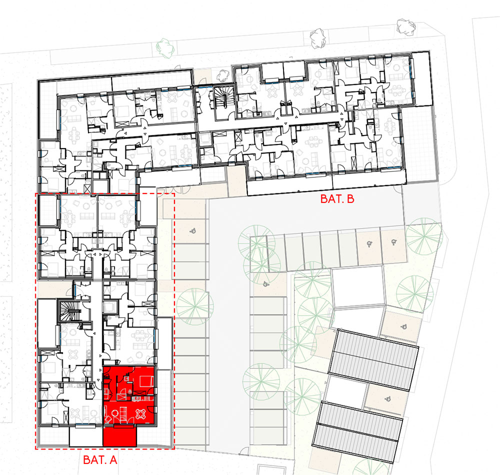
Bâtiment A - Lot A204
Accueil
Choix des Lots
Bâtiment A
Bâtiment A - Lot A204
+
+
TIERCÉ
ZAC Le Bourg Joly - Îlot C
Résidence Gogane
Bâtiment A
Niveau 2
T2
A204
Ce lot vous intéresse ?
Envoyer
Le Quartier
Qualité & Construction
Choix des Lots
Bâtiment A
Bâtiment B
Bâtiment C
Lots T2
Lots T3
Lots T4-T5
Maisons
Contact